The Riopas Cabin
The Riopas Log Cabin
-
EZ Log Structures Northern Ontario Do It Yourself Kits are perfect for transporting to remote areas.
Great 3 season getaway, lots of room for friends and family and ready to mount on concrete slab or wood sub floor (by others)
Kit Includes:
-precut interlocking wall logs
-premium tilt & turn double glazed thermal wood windows/doors
-window & door trims
-roof purlins (upgraded for snow loads in Ontario )
– 3/4″ T & G roof boards
-interior divisional walls
-solid core interior doors c/w hardware
-threaded steel rods at wall junctions
-fascia boards
-facia trims
-hardware with keys
OTHER EXTRAS WE INCL.
-Engineered Stamps for Ontario Building Codes
-Upgrades to meet Ontario Codes
-drilled for electrical
-Extra Roof Perlins for Snow Load
- 1/2 Glass in Front Doors
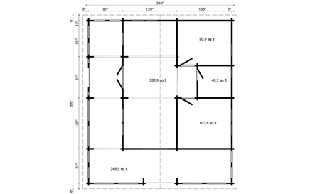
70mm 870 sq/ft RIOPAS
-
-
Call about Delivery Pricing in Ontario -
-
EZ Log Structures Northern Ontario Do It Yourself Kits are perfect for transporting to remote areas.
Great 3 season getaway, lots of room for friends and family and ready to mount on concrete slab or wood sub floor (by others)
Kit Includes:
-precut interlocking wall logs
-premium tilt & turn double glazed thermal wood windows/doors
-window & door trims
-roof purlins (upgraded for snow loads in Ontario )
– 3/4″ T & G roof boards
-interior divisional walls
-solid core interior doors c/w hardware
-threaded steel rods at wall junctions
-fascia boards
-facia trims
-hardware with keys
OTHER EXTRAS WE INCL.
-Engineered Stamps for Ontario Building Codes
-Upgrades to meet Ontario Codes
-drilled for electrical
-Extra Roof Perlins for Snow Load
- 1/2 Glass in Front Doors
70mm 870 sq/ft RIOPAS
-
-
Call about Delivery Pricing in Ontario -
Size
-
870 sq/ft (28' x 32')
-
also 1176 sq/ft (28' x 42')Available
Call for floor plan options and pricing. -
Price
- -
with floor
70mm Wall Logs -
870 sq/ft -
-
-





